B1 QJ-25、50、80型气体继电器
气体继电器是变压器内部故障的主要保护元件,对变压器匝间和层间短路、铁芯故障、套管内部故障、绕组内部短线及绝缘劣化和油面下降等均能灵敏动作。
QJ-25、50、80型及QJ4-25G型气体继电器均可抽芯进行结构检查及动作流速调整。
B1.1 QJ-80型继电器结构
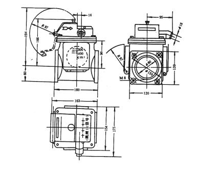
由于QJ-25、50、80型继电器结构基本相同,因此现以QJ1-80为例进行介绍,其芯子结构如图B1所示,外形如图B2所示。
体继电器安装在变压器到储油柜的链接管路上。继电器芯子上部由开口杯4、重锤3、磁铁5、和干簧触点6构成动作于信号的容积装置,其下部有挡板8、于弹簧联接的调节杆10、磁铁7和干簧触点11构成动作于跳闸的流速装置。
变压器正常运行时,继电器内一般是充满变压器油。如果变压器内部发生轻微故障,则因油分解而产生的气体聚集在上部气室内,迫使其油面下降,开口杯4随之下降到某一限定位置,其上的磁铁5使干簧触点6吸合并动作于信号;若变压器因漏油而使油面继续降低,同样动作于信号。如果变压器内部发生严重故障,油箱内压力瞬时升高,将会出现油的涌浪,则在连接管路中产生油流,冲击挡板8,当挡板旋转到某一限定位置时,其上的磁铁7使干簧触点11吸合并动作于跳闸,切断与变压器连接的所有电源,从而起到保护变压器的作用。
B1.2 继电器主要技术性能
B1.2.1 继电器及连接管径
QJ-25型继电器的连接管道经为φ25mm, QJ-50型为φ50mm,QJ-80型为φ80mm。
B1.2.2 流速整定范围
QJ-25型继电器的流速整定范围为0.1m/s,QJ-型为0.6~1.2m/s,QJ-80型为0.7~1.5m/s。
B1.2.3 气体容积整定范围
QJ-50、80型继电器的气体容积整定范围为250~300ml。
B1.2.4 密封性能试验
继电器内充满变压器油,在常温下加压至0.15MPa,持续20min后应无渗漏。
B1.2.5 工作温度
工作温度为—30~+95℃。
B1.2.6 触点断开容量(开闭1000次)
交流:电压220V,电流0.3A。
直流:电压220V,电流0.3A(有感负荷时间常数S≯5×10ˉ3s)
B1.2.7 介质强度试验
端子对地,端子间施工频电压2000V,持续1min应无击穿闪络。
B1.2.8 抗振能力
当振动频率(正弦波)4~20Hz,加速度4g时(g为重力加速度),继电器不应动作。

B1.2.9 外形尺寸
QJ4-25G型继电器(长×宽 ×高)为200mm ×120mm ×154mm;QJ-50型、QJ1-80型为160mm ×160mm× 220mm ;QJ2-80型为185mm ×160mm ×235mm。
B1.2.10 质量
QJ-25型继电器约4.5kg,QJ-50型、QJ1-80型约10kg,QJ2-80型约11kg。
B2 主要零部件
B2.1 挡板
B2.1.1 有效面积
QJ-50、80型挡板用1mm黄铜板制作,其有效面积(宽×高)为50mm×50mm;QJ4-25G型挡板用1mm黄铜板制作,其有效面积为30mm×40mm。
B2.1.2测量孔
QJ-25、50、80型挡板纵中心线上有一个测量孔,供流速测量尺进行测试用,测量孔距挡板底边尺寸为20±0.5mm。其中QJ4-25G型的测量孔直径为φ3mm,QJ-50、80型为φ4mm。
B2.2 磁铁
选用H30~H35型磁铁,外形尺寸(长×宽×高)为10mm×10mm×8mm。其主要技术性能为剩磁感应强度Br=0.35~0.38T,表面磁通密度0.12~0.14T。
B2.3 弹簧
B2.3.1 QJ4-25G型选用φ0.6mmI级碳素弹簧钢丝制作,展开长度为470mm,右螺旋,工作圈数为16.5,圈经φ9mm,弹簧长度19.9±1.5mm。当拉伸26.4mm时张力为0.84±0.01kg,拉伸32.6mm张力为1.66( )
B2.3.2QJ-50型选用φ0.7mmI级碳素弹簧钢丝制作,展开长度为440mm,右螺旋;工作圈数为16.5,圈颈φ9mm,弹簧长度mm。当拉伸3mm时张力为0.1+0.02kg,拉伸25mm时张力为0.68+0.05kg,拉伸39mm时张力为0.8kg。弹簧需经回火热处理和发兰表面处理等工艺过程。
B2.3.3 QJ-80型选用φ0.8mm I 级碳素弹簧钢丝制作,展开长度为450mm,右螺旋,工作圈数为16.5,圈径φ9mm,弹簧长度mm。当拉伸3mm时张力为0.15+0.05kg,拉伸25mm时张力为1.15+0.10kg,拉伸39mm时张力为1.85~2.00kg。弹簧需经回火热处理和发兰表面处理等工艺过程。
B2.4 干簧触点
B2.4.1 触点断开容量(开闭1000次)
交流:电压220V,电流0.3A
直流:电压220V,电流0.3A(有感负荷时间常数S≯5×10-3s)
B2.4.2 接触电阻
在额定容量试验后,其触点间的接触电阻小于0.15Ω。
B2.4.3 密封试验
在常温变压器油中加压至0.15MPa,连续24小时后,玻璃管内无油痕。
B2.4.4 绝缘强度试验
触点间施加工频电压2000V,连续1min后,应无放电现象。亦可用2500V兆欧表测量绝缘电阻,阻值应大于300MΩ。
B2.4.5 动作磁通密度
表面磁通密度为0.12T的H30~H35型永久磁铁,距干簧触点管壁为2.5~4.0mm时,触点应能吸合。
B2.4.6 共振现象
在40~60Hz及其双倍频率时,触点不能出现共振现象。
B3 改进型气体继电器
QJ-50G、QJ-80G、QJ4-25G型继电器为防水、防渗漏性能好的改进型气体继电器。
B3.1 流速整定值
QJ-50G型继电器的流速整定值为0.8m/s,QJ-80G型为1.0m/s,QJ4-25G型为1.0m/s
B3.2 接线端子
QJ-50G、80G型继电器的接线端子有5个,其中作用于跳闸回路的接线端子有3个,这5个接线端子的接法如下:
a、正、T两个接线端子引出的是两个干簧触点内部串联的接法;
b、(正)(T1)(T2)三个接线端子引出的是由两个干簧触点各起动一块中间继电器,并通过这两块中间继电器的触点串联的接法。
推荐仪器:瓦斯继电器校验仪 瓦斯继电器校验台 |